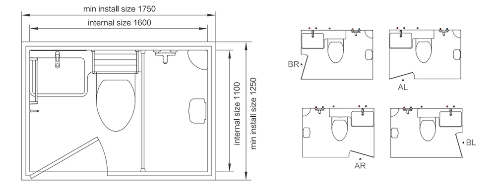
| 参数 | 内部尺寸 | 外部尺寸 |
| 宽度 | 1100mm | 1250mm |
| 长度 | 1600mm | 1750mm |
| 高度 | 2000mm/2200mm | 2500mm/2650mm |
| 面积 | 1.76㎡ | |
| 重量 | ≤220kg | |
| 应用领域 | 酒店,公寓,房地产,模块化房屋,医院等。 | |
| 运输信息 | 48套散装/40尺柜 | |
| BUL1116 | ||
| 名称 | 规格 | |
| 主体 | SMC模压底盘 | 1100x1600mm |
| SMC模压墙板 | H = 2000/2200mm | |
| SMC模压顶盖 | 1100x1600mm | |
| 门 | 600x2000mm | |
| 地漏 | ||
| 洗漱 | P型方盆 | L = 1000mm |
| 面盆龙头 | 单柄单孔 | |
| 化妆镜 | 500x700mm | |
| 毛巾架 | L = 400mm,ABS | |
| 方形置物架 | ABS | |
| 如厕 | 坐便器 | 顶按 |
| 卷纸架 | ABS | |
| 淋浴 | 淋浴花洒套装 | 单柄双孔,含热带雨林花洒 |
| 浴巾架 | L = 400m,ABS | |
| 挡水条 | ||
| 玻璃淋浴屏/淋浴窗帘(杆) | ||
| 肥皂架 | ABS | |
| 电器 | LED筒灯 | 4000k |
| 换气扇 | 一体式换气扇 | |
| 插座 | ||
| 安装零件 | 安装紧固件 | |
| 给水管 | 长度比浴室墙高150mm | |
| 排水管 | ||
| 防霉密封胶 | ||