MTU1219 | ||
名称 | 规格 | |
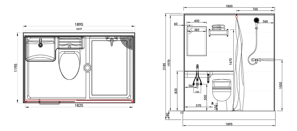
主体 | SMC模压底盘 | 1195x1895x180mm |
ABS复合墙板 | H = 2200mm | |
铝蜂窝板吊顶 | 1220x2600mm | |
玻璃移门 | 1825x2000mm | |
洗漱+淋浴 | 镜子 | 400x600mm |
P形盆 | L = 1000mm | |
面盆龙头 | ||
淋浴龙头 | ||
| 面盆下水 | ||
| 三角置物架 | 210x210mm | |
| 浴帘浴帘杆 | ||
毛巾浴巾架 | 400mm | |
如厕 | 马桶 | |
| 密封脂 | ||
| 波纹管 | 400mm | |
排水法兰 | 75mm | |
电器 | 筒灯 | 4000k |
| 插座(带防溅盒) | ||
| 换气扇 | 300x300mm | |
换气扇转换框 | 300x300mm | |
安装零件 | 型材 | |
| 胶条 | ||
| 铜锁紧螺母 | ||
| 进水管 | ||
| PVC排水管 | ||
| PVC三通 | ||
| PVC弯头 | ||
| 玻璃胶 | ||
| 多功能胶 | ||
安装紧固件(螺丝袋) | ||


